朱哲一:和順園——現代簡約
瀏覽量:349
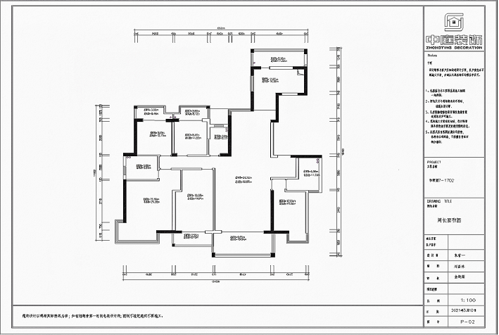
原始戶型圖
業主想要把客餐廳的空間變大些,還想要封窗。同時業主想要圓桌,認為一家人圍著吃飯更溫馨。
業主想要把主臥的衣帽間變大些,現主臥的衣帽間空間較小。
兒童房的空間較小,業主想要讓孩子們可以在臥室可以有個學習的地方。
書房空間太大了,想要分割一些空間用作其他需求。
業主認為這個衛生間的位置不好,想把這個衛生間換成儲物室

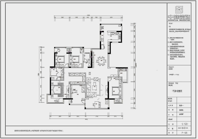
平面布置圖
1.主臥:寬敞舒適的臥室;超大的到頂的儲物柜,滿足全家的收納需求,獨立的衛浴空間,單獨的衣帽間,更是優質生活的體現。
2.兒童房:把原來的房間的空間外擴出去,即增加了空間的面積,使兒童活動空間變得更加的大,靠窗的書桌,采光更好,更有利于學習。
3.書房:書房又稱家庭工作室,是作為閱讀、書寫以及業余學習、研究、工作的空間,不僅可以呈現業主家的書香意氣氛圍,還能培養孩子熱愛讀書的興趣。
4.公衛:考慮到衛生的問題,衛生間采用了蹲便的形式,更加的方便衛生
5.客廳:將景觀陽臺納入客廳空間,不僅視線開闊,還增加了室內空間的面積,放置的茶桌更凸顯主人家的風雅情操。
6.廚房:開放式廚房與客廳互為連通又相對獨立,L型的設計不僅滿足烹飪的所有需求,還將實用美觀的餐桌與廚房緊密相連,形成一個開放式的烹飪就餐空間.營造出溫馨的就餐環境,讓居家生活的貼心快樂從清早開始就伴隨全家人。

客廳用現代輕奢裝飾,象牙白與駝色加簡單的金屬線條裝飾讓客廳看起來更顯高級感,淡雅的顏色搭配干練的線條這巧妙的搭配讓空間在簡約的外表之下大大的豐富了空間的層次感,不動聲色的流露出靈魂中的優雅。

主臥延續了空間整象牙白和駝色與金屬線條裝飾的搭配,這剛好合適的搭配,剛剛好透露出了合適的高貴與優雅。

公主房主體以粉色輔以大面積留白,主體粉色吸引目光美麗溫馨,而充滿樂趣,大面積白色代表純潔,充分表現了少女的甜蜜純潔,在此之中輔以橙色在美麗中又不缺活潑,一點點灰色豐富整個畫面感帶有端莊,房間陽臺外擴,充分利用空間開闊明亮。

實景落地的客廳

實景落地的臥室
相關案例推薦RELATED TO THE CASE
查看更多案例-
現代風格丨 三居室 丨80-120㎡
-
輕奢風格丨 三居室 丨80-120㎡
-
其它風格丨 三居室 丨80-120㎡
-
其它風格丨 三居室 丨80-120㎡
預約整裝設計方案服務
*已有【1000+】人成功預約
設計資訊DESIGN INFORMATION
查看更多資訊-
-
15
2022-05
南寧自有工人的裝修公司
南寧自有工人的裝修公司,說到裝修,自... 查看詳情>> -
15
2022-05
如何選南寧裝修公司省錢又省心?
在南寧新房裝修如何選擇裝修公司省錢又... 查看詳情>> -
15
2022-05
南寧新房選裝修公司一定要看這8大保障!
南寧新房裝修怎么選裝修公司,這8大保... 查看詳情>> -
15
2022-05
南寧新房裝修怎么選裝修公司?
不操心的裝修,往往是大部分人對房子裝... 查看詳情>> -
15
2022-05
南寧裝修公司怎么選?
說到裝修,大部分業主最先聯想到的就是... 查看詳情>>


